
Chalet independiente en Galápagos
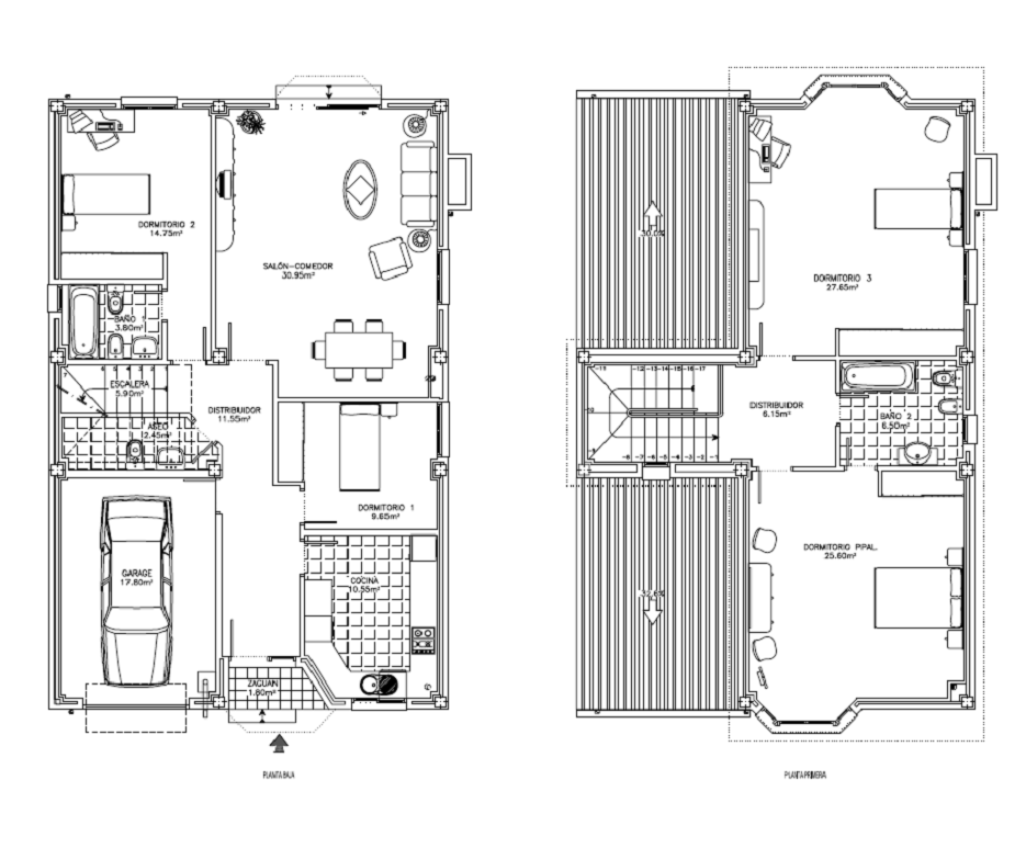
Bonito Chalet independiente en Galápagos (Guadalajara) de dos plantas. Vivienda de 211 m² y parcela de 500 m².
Amplia planta baja, ideal para el día a día, ya que consta de Dos dormitorios. El salón de unos 31 m² tiene salida directa a jardín. La cocina está equipada y la planta dispone de Aseo en el distribuidor. El dormitorio principal de Planta Baja dispone de baño completo con ducha.
En planta primera nos encontramos con Dos habitaciones de 27,65 m² y 25,60 m² y un baño de 6,50 m².
Suelos en planta baja de gres porcelánico y tarima en primera planta. Puertas de roble macizas y escalera de mármol.
La vivienda dispone de un Garaje cerrado de 18 m² y 500 m² de parcela.
Galápagos se encuentra ubicada en un entorno rodeado de naturaleza y tranquilidad. Es una zona enclave dentro del Corredor del Henares. A menos de 20 minutos de Guadalajara y Alcalá de Henares y a 45 minutos de Madrid. Dispone de todos los servicios principales como Colegio, Biblioteca, Centro de Salud, Centro de Mayores, parques infantiles.
PVP: A CONSULTAR. SIN HONORARIOS DE AGENCIA
¡PIDA INFORMACIÓN SIN COMPROMISO PARA ASESORAMIENTO EN LAS OPCIONES DE COMPRA! Y VISITE NUESTRA VIVIENDA.






